東京都港区港南3丁目5−21
ロイヤルパークス品川
  • 价格
    ¥1,060,000
  • 户型
    4LDK
  • 卧室
    4
  • 面积
    122.00m²
  • 楼层
    28階
房产设施
房产介绍

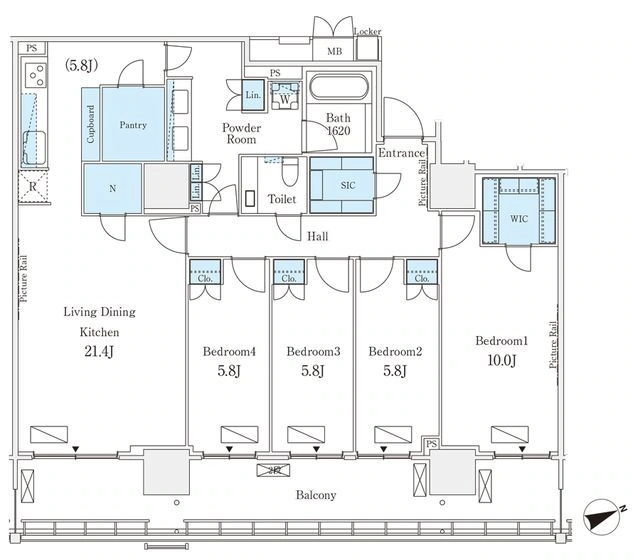
【ロイヤルパークス品川】是一栋位于东京市中心港区的高层公寓,此次介绍的房源位于顶层,提供面积约 121.59 平方米的开阔居住空间。该公寓地理位置优越,步行至品川站仅需 11 分钟,在便捷抵达主要交通枢纽的同时,凭借齐全的先进设施,为住户打造奢华的生活方式。

房源户型为 4LDK(4 间卧室 + 客厅、餐厅、厨房一体化空间),设计兼顾私密性与功能性。其中,客厅、餐厅、厨房(LDK)区域面积约 38.25 平方米,宽敞舒适,无论是日常放松休憩,还是举办家庭派对都能轻松满足;每间卧室面积均在 15.3 平方米以上,空间充裕,为家庭成员各自保留了独立的私人空间。

查看更多
此房产非常受欢迎,请尽快咨询,快人一步。
地址 港区 总户数
交通 管理方式
结构/层数 土地权利
建筑面积 设施
土地面积 其他设施
朝向 特点
户型 4LDK 公共设施
建造年月 2025 管理费
维修基金 月费用总计
其他月度费用 停车场
交付条件 现状
交易方式 交付时间
类型 公寓 备注
车站步行 11
博客
“总有一天要拥有自己的家”……是时候把那个“总有一天”变成现在了。

“总有一天要拥有自己的家”……是时候把那个“总有一天”变成现在了。

google map
推荐房产
咨询
类型
租赁类型
希望交付日期
预算
其他条件
购买目的
房产类型
预算
希望区域
其他条件
房产类型
所在区域
房产面积
希望出售价格
其他
房产类型
所在区域
房产面积
希望出售价格
其他
房产类型
所在区域
房产面积
希望月租金
其他
房产类型
所在区域
房产面积
其他
其他
姓名
电子邮箱
希望使用的语言
联络电话
微信 ID
通知
发送成功,感谢您的支持。